


翻车机干雾除尘系统
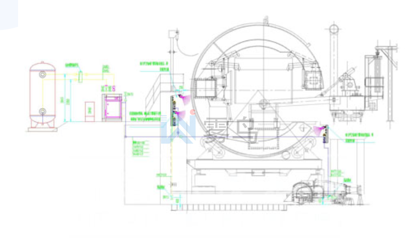
翻车机的微米级干雾抑尘系统由水箱、多级过滤恒压����� �������Ƴ������������ �������Ƴ����������� �������Ƴ������������ �������Ƴ�������供水站、空气压缩机、储气罐、微����� �������Ƴ������������ �������Ƴ����������� �������Ƴ������������ �������Ƴ�������米级干雾抑尘主机、干雾箱控制器����� �������Ƴ������������ �������Ƴ������������ �������Ƴ������������ �������Ƴ�������、喷雾箱、雾化管道、集中控制系����� �������Ƴ������������ �������Ƴ����������� �������Ƴ������������ �������Ƴ�������统、配电箱等组成。 在翻车机����� ������ �������Ƴ����������� �������Ƴ������������ �������Ƴ����������� �������Ƴ�������������Ƴ������倾翻侧上面安装5套ST����� �������Ƴ������������ �������Ƴ������������ �������Ƴ����������� �������Ƴ�������2-7-60干雾箱总成,1套STK-A干雾箱控制����� �������Ƴ����������� �������Ƴ����������� �������Ƴ������������ �������Ƴ�������器,1套STK-W干雾箱控制器,在倾翻侧����� �������Ƴ������������ �������Ƴ������������ �������Ƴ����������� �������Ƴ�������下面安装3套ST2-7-60干雾箱总成,����� �������Ƴ����������� �������Ƴ������������ �������Ƴ����������� �������Ƴ�������1套STK-A干雾箱控制器,1套STK-W干����� �������Ƴ����������� �������Ƴ������������ �������Ƴ������������ �������Ƴ�������雾箱控制器,在背翻侧设计安装6����� �������Ƴ������������ �������Ƴ������������ �������Ƴ����������� �������Ƴ�������套ST2-7-60干雾箱总����� �������Ƴ������������ �������Ƴ����������� �������Ƴ������������ �������Ƴ�������成和1套SKT-A干雾箱控制器、1套SKT-W����� �������Ƴ������������ �������Ƴ����������� �������Ƴ������������ �������Ƴ�������干雾箱控制器,干雾箱总成喷雾时����� �������Ƴ������������ �������Ƴ������������ �������Ƴ������������ �������Ƴ�������间30s,周期2min。

翻车机指一种用来翻卸铁路敞����� �������Ƴ������������ �������Ƴ������������ �������Ƴ������������ �������Ƴ�������车散料的大型机械设备。可将����� �������Ƴ������������ �������Ƴ������������ �������Ƴ������������ �������Ƴ�������有轨车辆翻转或倾斜使之卸料的装卸机械,适用于运����� �������Ƴ����������� �������Ƴ������������ �������Ƴ������������ �������Ƴ�������输量大的港口和冶金、����� ����� �������Ƴ������������ �������Ƴ������������ �������Ƴ������������ �������Ƴ�������������Ƴ������ 煤炭、 热电等����� �������Ƴ������������ �������Ƴ������������ �������Ƴ����������� �������Ƴ�������工业部门,翻车机在工作时没法进行密封,在敞开的环����� �������Ƴ������������ �������Ƴ������������ �������Ƴ������������ �������Ƴ�������境下很容易产生粉尘,并且翻车机一般体型����� �������Ƴ������������ �������Ƴ������������ �������Ƴ������������ �������Ƴ�������较大,工作时翻车机会带动气流����� �������Ƴ������������ �������Ƴ������������ �������Ƴ������������ �������Ƴ������,这是会产生大量的粉尘,这����� �������Ƴ������������ �������Ƴ������������ �������Ƴ������������ �������Ƴ������些粉尘在敞开的环境下会很快向外扩����� �������Ƴ������������ �������Ƴ������������ �������Ƴ������������ �������Ƴ������散,造成厂区污染,且影响工����� �������Ƴ������������ �������Ƴ������������ �������Ƴ������������ �������Ƴ�������人正常工作。

翻车机在倾卸物料时,粉尘与粉尘、粉尘与翻车机����� �������Ƴ������������ �������Ƴ������������ �������Ƴ������������ �������Ƴ�������之间产生碰撞和挤压,半封闭����� �������Ƴ������������ �������Ƴ������������ �������Ƴ������������ �������Ƴ�������空间中的空气波动,产生运动,粉尘剪切压����� �������Ƴ������������ �������Ƴ����������� �������Ƴ������������ �������Ƴ�������缩造成尘化。物料在空气中以一定的速度运动时,能����� �������Ƴ������������ �������Ƴ������������ �������Ƴ����������� �������Ƴ�������带动周围空气随其一起流动,这部分空气����� �������Ƴ������������ �������Ƴ����������� �������Ƴ������������ �������Ƴ�������称为诱导空气。诱导空气又会卷吸一部分����� �������Ƴ������������ �������Ƴ������������ �������Ƴ������������ �������Ƴ�������粉尘,随空气一起����� ���������� �������Ƴ����������� �������Ƴ������������ �������Ƴ������������ �������Ƴ���������Ƴ������流动,产生诱导����� �������Ƴ������������ �������Ƴ������������ �������Ƴ������������ �������Ƴ������尘化原因。长方体的列车车厢,在翻车过程����� �������Ƴ������������ �������Ƴ������������ �������Ƴ������������ �������Ƴ�������中,会绕某一轴随翻车机一起转动,车厢����� �������Ƴ������������ �������Ƴ������������ �������Ƴ������������ �������Ƴ�������的两个侧面和地面好像三面扇子,绕轴����� �������Ƴ������������ �������Ƴ������������ �������Ƴ������������ �������Ƴ�������做旋转运动,因而会在车厢周围产生����� �������Ƴ������������ �������Ƴ������������ �������Ƴ������������ �������Ƴ�������一股旋转气流,这股气流会携带下落过程����� �������Ƴ������������ �������Ƴ������������ �������Ƴ����������� �������Ƴ�������中的粉尘一起运动,产生尘化。这些粉尘会对厂����� �������Ƴ������������ �������Ƴ������������ �������Ƴ������������ �������Ƴ�������区环境造成影响,因此需要相����� �������Ƴ������������ �������Ƴ������������ �������Ƴ����������� �������Ƴ�������应的除尘设备进行除尘。

水箱容量根据现场情况来定,一般����� �������Ƴ������������ �������Ƴ������������ �������Ƴ������������ �������Ƴ�������从4立方-10立方,可以采用连����� �������Ƴ������������ �������Ƴ������������ �������Ƴ������������ �������Ƴ�������续供水或者定时定点供水。多级过����� �������Ƴ������������ �������Ƴ����������� �������Ƴ������������ �������Ƴ�������滤恒压供水站将水箱内的供水多级过滤后����� �������Ƴ������������ �������Ƴ������������ �������Ƴ������������ �������Ƴ�������,通过水泵加压,保证压力恒����� �������Ƴ������������ �������Ƴ������������ �������Ƴ������������ �������Ƴ������定,输送至干雾主机内。空气压缩机产生����� �������Ƴ������������ �������Ƴ������������ �������Ƴ������������ �������Ƴ������������ ������������ �������Ƴ������������ �������Ƴ������������ �������Ƴ������������ �������Ƴ�������Ƴ������压缩空气,经����� �������Ƴ����������� �������Ƴ������������ �������Ƴ������������ �������Ƴ�������过储气罐缓冲,输送至干雾主机内。干雾����� �������Ƴ������������ �������Ƴ������������ �������Ƴ������������ �������Ƴ�������主机对供水和供气进行检测调节,按照设定的压力����� �������Ƴ������������ �������Ƴ������������ �������Ƴ������������ �������Ƴ�������和流量输送至各个干雾箱。

